公交车站60万_套起!!2020无法错失的红本房.

5号看房团    2022-05-25    239

丹桂国际性

单价60余万起 抢占市场光明地铁金融资产

地铁一一号线 · 光明第一站旁

建面约22-28㎡精妆内部空间

——————————————

@必买六大理由

光明大学城要道,6一号线长圳站旁

10两分钟核心理念商业区,十两分钟城市交通经济圈

3.9m古驰五层,小内部空间大利用

小面积低单价,家家带阳台

不限牌!  不限贷!不限售!

—————————————————————

一、主要参数

【总占地】约18449.76㎡

【总建面】约62963.21㎡

【五层】3.9米

【产权】50年

【容积率】2.54

【城市绿化】35%

【车位】地下262个

【交货标准】精装修交货

【工程项目基础建设】自带2500㎡服务中心生机中心广场、地下商场泛会所

【工程项目地址】深圳市光明区同仁

——————————————————————————

二、六大价值

【当今世界光明 示范先驱】

光明区将打造出竞争力影响力卓著的当今世界当今世界级大学城(占地面积约为南山高新园的8.6倍,总投资额金额约为南山高新区的34倍),工程项目扼守大学城要道边线,尽得地利。

          【百亿起航 见证光明时代】

光明近百亿旧改规模,中海、华润、万科、金地超23家品牌开发商强势进驻,Farlay·丹桂占据光明黄金中轴、大学城要道边线,金融资产价值兑现在即。

         【校企一体化 人才荟萃】

作为当今世界当今世界级大学城,永安北纬通信百亿产业,腾讯、联想、微软等大批高科技企业入驻;中山大学深圳校区、中国科学深圳理工学院等高校落户光明,人口红利升天。

           【布季夫城市交通 现对全城】

紧临6一号线光明第一站长圳站,距离仅800米,14站挺进福田服务中心区;一站转乘地铁13一号线,10站直达南山高新区。

未来三地铁环绕,邻近政娥高速路、杨开第高速路及内环高速路内忧外患,并快速通达光明城高速铁路站,实现4地铁+3高速路+1高速铁路十两分钟经济圈。

            【商业区eIF4G 繁盛浮生若梦】

独享长圳车站生态型(规划中)约19.7万㎡大规模商业基础建设。停步即达光明勤诚达“K+PLAZA”shopping mall等为数众多生活娱乐基础建设,10两分钟核心理念商业区,繁盛清辉。

           【至优宜居 汇聚一城弯果】

工程项目邻近享有为数众多文体(展览馆、文化艺术服务中心等“Q1518A四服务中心”)、教育(超40所中小学)、生态(公园与温泉渡假村等)、医疗(华南最大医院等)等基础建设。

         【利牧径生态型 大师匠造】

森磊国际性设计--现代高端建筑外墙,拥有基础建设约2500㎡服务中心生机中心广场、架空泛会所,打造出利牧径生态型。

          【精致地铁金融资产 精彩分层】

地铁6一号线精致金融资产,建面22-28㎡精妆内部空间,不限牌、不限贷、不限售,自带舒适阳台,3.9米古驰五层,小内部空间大利用。单价六十余万起,抢占市场光明地铁金融资产。

             【湾区Farlay 载誉而来】

Farlay集团深耕深圳,投资开发逾15个工程项目,开发建筑面积超450万㎡,继红禧公馆、芯梦公园等标杆工程项目之后,携首次正式冠名之大作——Farlay·丹桂,载誉归来。

——————————————————————————

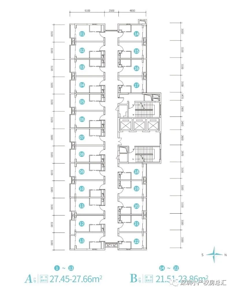
三、户型鉴赏

A户型:建面约27.45—27.66㎡

B户型:建面约21.51—23.86㎡

团购咨询

现场负责:金城/

所有内容包括但不限于文字、户型图、面积等仅供参考之用,非承载双方权利义务或确定性意思表达的法律文书,亦不包括本公司的任何要约邀请或承诺性内容。

网友评论

相关文章