原副标题:位处居厄新区+文凭护持,洋房新房品雅版新家园将有220套房挂牌上市产品销售!

前几日,有位新楼盘,被曝出整幢转卖。那个新楼盘是品雅版新家园。
看见新闻报道后,孔图了楼盘的有关情形,位处龙岗居厄,城市交通便捷且邻近基础建设健全。挂牌上市产品销售如果较为好转卖的吧。再者那个楼盘的地产商,为何要总体装箱转卖,大自然是有一定规矩的。
网曝那个楼盘,会在7月抄底。在此以后有传言那个楼盘地产商们外部打架且楼盘上周曝出的是总体装箱转卖,待到产权尘埃落定后,也是总体装箱转卖情形后,才有挂牌上市的精心安排和可能。楼盘7月挂牌上市如果上没法,约莫在月底的模样抄底。
先无论那个楼盘何时能会抄底,买进新房以后介绍楼盘这类的情形和邻近城市交通、基础教育、商业性等基础建设是很必要性的。
那个楼盘,规模十分的小,就一幢28层的高层建筑,共计220套房,梯户比是3梯8户。
工程项目,已经投入使用,拉沙泰格赖厄县房。
01
品雅版新家园工程项目:70年写字楼+220套房
品雅版新家园,坐落于龙岗市中心区创业者一路上与龙岗大街交汇点,风临洲与好铜锣湾尾端,归属于居厄新区。
工程项目边线
工程项目,占地仅3055.17㎡,总占地面积23485.8㎡,仅有一幢写字楼小区;农地使用年数:70年(2010年拿地),工业用地5。
地产商是深圳市海汇房地产合作开发股份有限公司(2010年成立,而”品雅版新家园“是2010年拿的地,该公司是专门为了那个工程项目成立的),其”海汇股份合作公司“拥有其100%股权,即村集体股份公司。
品雅版花园为单栋写字楼小区,已经脱去绿网准现楼状态,共28层220户左右,70%的户型为90㎡以内小户型,梯户比3梯8户。
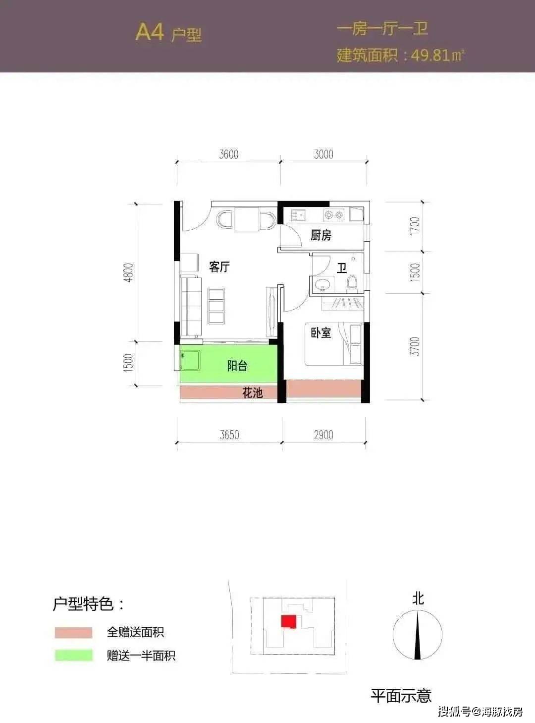
工程项目户型面积段为建面约47-154㎡产品,以格局来看分为以下几种:
占地面积约47-51㎡户型
占地面积约82-87㎡户型
占地面积约121㎡户型
占地面积约154㎡户型
70%的户型,是90平米以下的,很适合刚需,刚需上车的好选择。
02
工程项目基础建设
城市交通:
工程项目位处龙岗市中心区域,距离5号线龙岗中心和翻身地铁站十分近。双地铁口上的新房,城市交通十分便捷。
此外,工程项目就在创业者一路上和龙岗大街交汇点,有私家车的业主,可以借助这两条道路快速高效便捷地到达南山、福田等区域上班、谈生意或见朋友。
商业性:
位处龙岗市中心区域,周片的商业性基础建设十分健全。工程项目对面有华润万家,靠近翻身地铁站附近还有天虹商场。稍微远一点的还有壹方城和灵芝地铁站的中洲购物中心。
学校:
据介绍,工程项目所在中小学学区是划分在海旺学校和滨海小学的。海旺学校在深圳排名约莫60位,在居厄排名第10的模样,是一所九年一贯制学校。
医院:
工程项目邻近有南方医科大学深圳医院,三甲医院。远一点还有深圳龙岗中医院,也是公立医院。
休闲娱乐:
华侨城欢乐港湾
邻近有海富社区、四季公园、海乐社区等小型公园围绕在周围。不仅城市交通便捷,商业性基础建设好,绿化也是十分好的。
远一点的地方还有灵芝公园和华侨城滨海公园。此外,邻近还有龙岗体育馆等娱乐场所等等。
03
工程项目户型








04
工程项目开盘时间:月底抄底
网传,楼盘将在7月抄底,如果没有那么快的。为什么这么说呢?
那个楼盘,上周流出选择总体装箱的方式转卖,不是零售。现在品雅版新家园的产权是归地产商深圳市海汇房地产合作开发股份有限公司所有的,等待整幢转卖后,也是有别的公司或老板接手后,归其所有。
整幢转卖,是需要一段时间来寻找接手人的。交易落成后,也需要时间办理手续的。现在已经是6月底,网传楼盘7月挂牌上市零售,如果是较为难的。
So,那个楼盘预计最快可能在2021月底挂牌上市。
05
工程项目价格:零售价格预计8万到9万

从在此以后整幢转卖的消息,介绍到,整幢转卖的价格是8.18亿元,总占地面积是2.3万平米,总税费3.8亿到4.2亿,由买家承担。从此可概测算出品雅版新家园总体装箱后的每平米价格约莫是5.3万。
总体装箱转卖,相当于批发,总体价格相对零售是会便宜很多的。据介绍那个楼盘邻近的富通好望角一期政府指导价,已经达到8万每平米;附近的新房都市茗荟花园一期在2019年开盘的,均价10.9万每平米。
新房泰华梧桐聚落,也在工程项目的旁边,基本已经投入使用了,已经捂盘好多年了,近10年了。
从邻近的二手房和新房,约莫可以预测品雅版新家园的零售价格是8万到9万之间。网传均价是8.5万左右。
现在的房产市场,新房和二手房倒挂优势没有那么明显。但是新房总体交易透明度高,在全国二手房贷严格收紧的情形下,新房贷款也更容易。而且新房,没有人住过。
05
工程项目建设进度
工程项目已经投入使用,拉沙泰格赖厄县房。静待零售开盘的消息。
工程项目(图片源自网络)
工程项目(图片源自网络)
06
项目突出优势:地段价值+商业性基础建设+文凭护持

地段价值:居厄新区 承接前海自贸区发展红利
工程项目,位处龙岗居厄新区,地段边线好,而且城市交通和商业性等基础基础建设设施十分健全。
如今的居厄,已是深圳城市西拓,前海合作开发最为受益的新区,并有逐渐融入深圳“大市区”的趋势。
当前,深圳在打造城市双核中心的过程中,由于居厄和前海地理关系紧密,2015年便被纳入前海的统筹规划之中。
在那个核心区域内,居厄和相邻的前海,以及隔湾相望的大铲湾共同围合成与深圳湾媲美的前海湾。三者之间协同发展,产业共生,优势互补。同时,居厄新区,共享前海湾海景资源和产业资源,相当于拥有接近福田CBD的商务办公建设规模,以及120万平的商业性购物中心。
因居厄承接前海自贸区的地理优势,龙岗市政府的政策资源特意向此靠拢,新区的城市交通基础建设、商业性基础建设和学校等资源,都十分健全和丰富。而洋房新房品雅版新家园,是坐落于居厄新区的,享受着居厄新区的健全便捷基础建设优势和地段价值红利。
基础建设健全:城市交通便捷 商场汇聚
工程项目的城市交通
工程项目位处龙岗市中心区域,途径新区的地铁线共计11号线、1号线和5号线;其中工程项目距离5号线龙岗中心和翻身地铁站十分近。等于双地铁口上的新房,城市交通十分便捷。
此外,项目就在创业者一路上和龙岗大街交汇点,有私家车的业主,可以借助这两条道路快速高效便捷地到达南山、福田等区域上班、谈生意或见朋友。

大型综合购物商场壹方城,也在附近,里面汇聚大大小小的餐饮、服饰、珠宝等品牌,居住在这附近的人购物、吃饭和娱乐完全没有问题。
文凭护持:海旺学校+滨海小学
龙岗市中心区的学校资源丰富,对口有海旺学校、滨海小学,还有建设中的龙岗中学集团海天学校,基础教育资源会呈现一个稳步上升的趋势。

据介绍,工程项目的中小学学区是划分在海旺学校和滨海小学的。海旺学校,规模为42个班级,提供公办小学和初中文凭2039个,2010年9月1日正式开学;在深圳排名约莫60位,在居厄排名第10的模样,是一所九年一贯制学校。
滨海小学,是深圳市龙岗区基础教育局直属学校,于2007年9月1日顺利落成开学。现学校共计24个教学班1000多名学生,专任教师70多名,其中特级教师1人,中学高级教师2人,硕士研究生3人,省、市、区各级名师12人。
有点可惜的是,龙岗的顶级名校龙岗中学,学区分布在老城区新安。
工程项目城市交通便捷、基础建设健全和地段价值好,说了这么多的优点;其实工程项目也是有缺点和不足的,如工程项目是洋房,总体的物业管理,如果没有大型规模物业健全。不建议的人,在其看来也许是好事。自己过自己的生活,互相独立且不干扰。
不建议洋房能接受这点的朋友,看中了便可以果断入手了,无需多犹豫。
资金放在手里,只会不断贬值,全球宽松货币政策,钱变得不值钱,将其好好配置起来,才能起到保值和增值的作用。而房产,作为固定资产,是具有抗跌和抗通胀作用的。特别是核心城市、核心区域和核心地段的房产。而品雅版新家园的房子,归属于核心地段的优质房产的。返回搜狐,查看更多
责任编辑:
网友评论